
Aarhus Klintegaarden communal sauna
SCHOOL: Aarhus School of Architecture
STUDIO: Studio 2A / Building Design and Technique
SUPERVISOR: Anders Gammelgaard Nielsen, cand.arch., PhD
agn@aarch.dk
CONTRIBUTION: Individual work
WORKING PERIOD: Sep. 2017 – Jan. 2018 (5 month)
LOCATION: Aarhus, Denmark
TYPE: Communal Facility, Sauna

“You cannot haunt your house at will. … …
Whether you like or not, whether your own house likes or not, you are going to leave traces behind, and those traces are not invisible. You cannot haunt your house at will. You do not have a choice. You are always someone left behind. The life you let in that house, people sense it from coming in whether it has been cleaned completely or not. You are aware that there was a human presence prior to you. How do we know that?”
– Mary Vaughan Johnson –
Trace and architecture
There are two architects that tell us a similar story about spatial experience. Louise Kahn wrote a note about how we perceive the beauty. He argues that the realisation of beauty comes from wonder which causes a sound of ‘Aha!’ . This happens only in a second.
Peter Zumthor says in his book, Atmosphere, “quality architecture to me is when a building manages to move me.” … “How do people design things with such a beautiful, natural presence, things are that move me every single time.” He goes on to say that the atmosphere is our first impression of space like the first impression of a person. Both of them talk about intuitive senses how we perceive the beauty and quality of space, and how fast we recognise this. Then, what makes people move and sense the atmosphere and beauty?
The traces that we leave become part of the architecture as materials that we sense in an involuntary moment. All the marks and stains tell us stories about how we move, and we follow them to repeat those actions that our ancestors did. To avoid perceiving the traces as disgusting stains, the key is in the details of architecture. We can find excellent examples from the great architects who designed precise and elaborate details which allow people to leave their traces and not seen as dirt. The project focuses on the relationship between the user’s bodily engagement of space and traces that they leave on architecture. This will be explored through a courtyard in Aarhus where the project deals with a new program within an existing structure. The architecture, as the threshold between the past and the present, enhances the spatial experience, and it will become a memory of place.
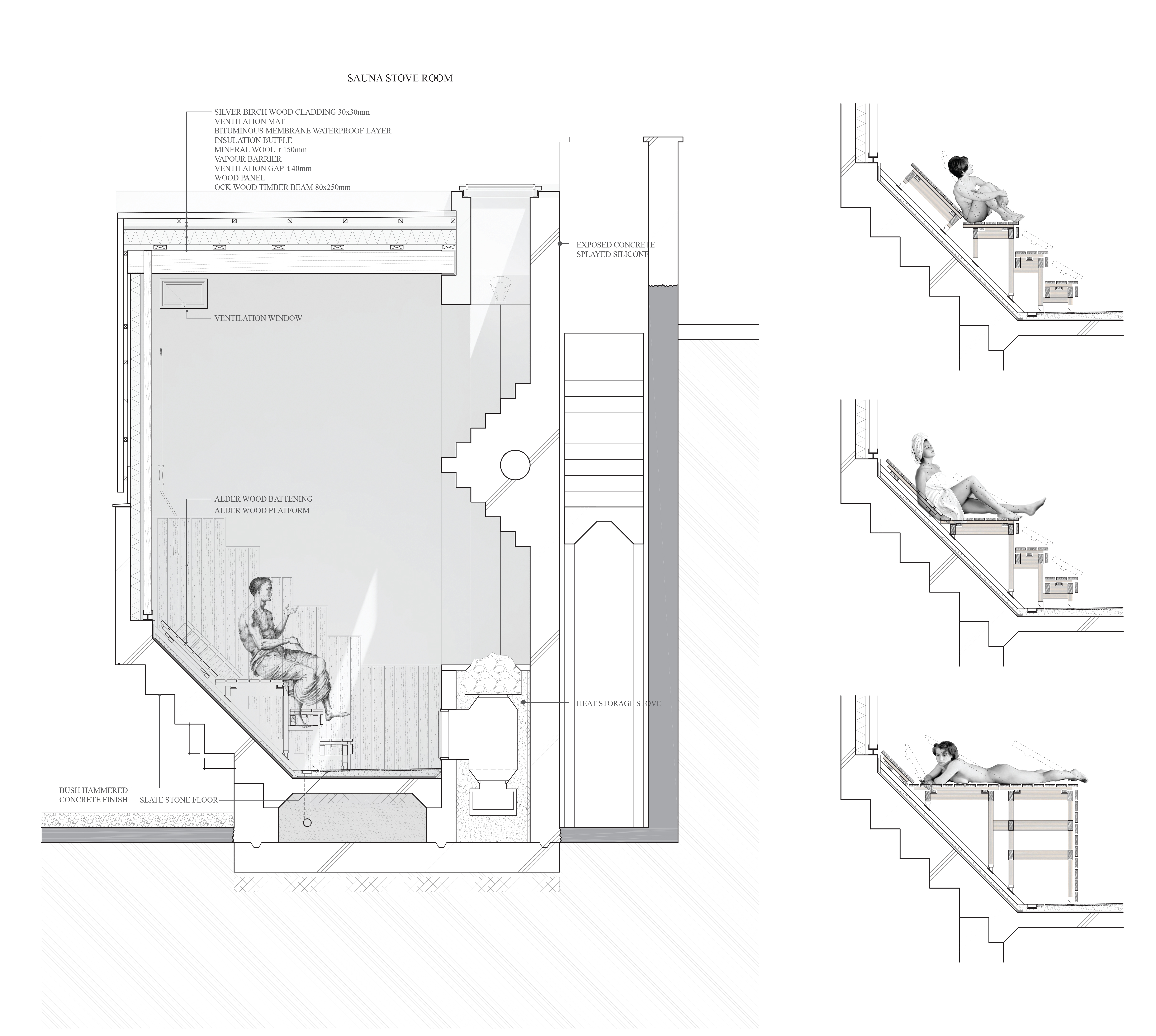
Klintgaarden’s history: the furnace

Sauna as a communal space

“If booze, tar, or the sauna won’t help, the illness is fatal.” – Old saying in Finland
The old painting on the left is the bathhouse in Bruge, Belgium. In the middle ages of Northern Europe, bathhouse and sauna were a place where people could find new friends or make love. They had a supper in the giant wooden bathtub, then, went bedroom as a couple.
Sauna space and rituals
1.Disrobe 2. Take a shower 3. Make a fire 4. Splash water
5. Perspire 6. Plunge into water 7. Drink water 8. Meditate




Cold plunging pool


Detail of water fountain



















